青岛瑞吉酒店高达369米,地处青岛市市南区,傲踞海天中心地标建筑,紧邻浮山湾海域,西瞰八大关文化建筑群,东揽五四广场、奥帆中心及香港路商圈,邀请当代名流雅士踏上一段精致优雅的沉浸式漫游。
瑞吉酒店作为山东省首家奢华酒店,可使宾客感受汲取自然灵感的艺术设计,精雕细琢的卓越设施,细致入微的瑞吉管家服务,以及别具匠心的饕餮美馔。
下面,跟随Mechin一起去看一看青岛这个全新的会议会展场地资源吧!
01 地理位置
02 硬件设施
房间
233间精致优雅的时尚客房,包含30间豪华套房,细 腻装饰与柔和色调的结合,碰撞出时尚典雅的艺术气息,巨幅景观落地窗将充足阳光引入室内,并以 无挡视野令宾客沉浸动人心弦的云端景致。其中:
双床房:54间
大床房:149间
套房:30间
餐厅
青岛瑞吉酒店的各式餐厅以创新风格的烹饪艺术,缔造专属赏味飨宴,为当地餐饮服务树立优质标杆。5间餐厅及酒吧包含秀全日餐厅,宴庭中餐厅,瑞吉扒房,闲逸廊及瑞吉酒吧。
闲逸廊
地点:59层
运营时间:10:00-24:00
下午茶时间:14:00-17:00
环境:坐拥岛城最高沁心海景,作为城中优雅的社交空间,亦是精英人士的理想聚集地
菜系:经典阿斯特下午茶及各式现代下午茶,名品咖啡及葡萄酒、鸡尾酒等
座位:56
秀全日餐厅
地点:59层
运营时间:
早餐06:30-10:30
午餐11:30-14:00
晚餐17:30-21:30
环境:秀全日餐厅设计灵感来源于老城区的德式建筑,以现代感拼贴画形式展示青岛多元化的建筑景观,悠享午后时光的同时,可于此观赏曼妙日落
菜系:现场烹饪台带来种类丰富的国际珍馐和风情料理;曾获亚洲西点杯殊荣的Calvin大厨的手工烘焙;精选龙虾及各贝壳类
座位:150
宴庭中餐厅
地点:5层
运营时间:
午餐11:30-14:00
晚餐17:30-21:30
环境:于用餐区落座,可欣赏海天一色的美妙景观
菜系:传承经典,演绎现代的粤式点心及套餐;高品质海鲜及肉类食材;可定制菜单;精选中式茶饮及新旧世界葡萄酒和中式烈酒窖藏
座位:160
瑞吉扒房
地点:60层
运营时间:11:30-14:00;17:30-21:30
环境:以纽约经典牛排馆为灵感的瑞吉扒房,配有Josper烤箱的现代化开放式厨房及酒窖私谧阁
菜系:以鲜活海洋之味与鲜嫩肉食定义餐桌艺术;周末午餐定制菜单及酒单
座位:45
瑞吉酒吧
地点:60层
运营时间:17:30-01:00
环境:延续镀金时代风华的瑞吉吧带来不夜精彩
菜系:源自酒精压缩器带来的佳饮体验;各式珍稀年份佳酿、精选威士忌及波本为基调;包含蛤蜊玛丽在内的精调鸡尾酒;共享牛排馆高品质精选菜单及特色小食
座位:28
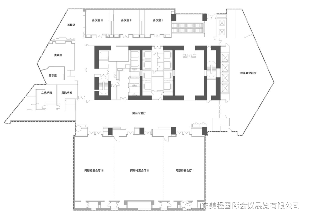
会场
在青岛瑞吉酒店,宴会专家团队及星级厨师团队专 注于为客人打造温馨难忘的体验。
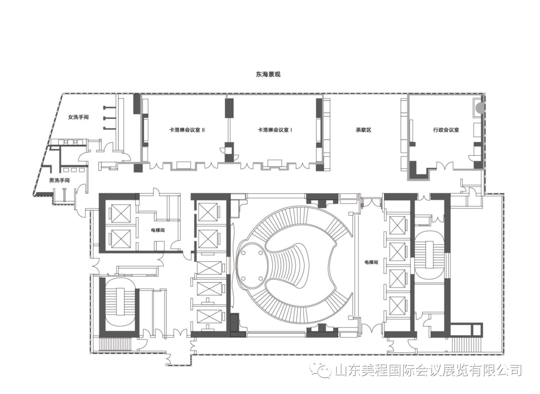
多样化选择的场地(3层及60层)超过2000平方米,包含900平方米的阿斯特宴会厅、会议室及多功能厅。位于酒店60层的卡罗琳会议室视野开阔,可览东海景观。
无论商务会晤、年会庆典、私人聚会,还是浪漫婚宴,服务团队均将为您量身定制专属套餐,并悉心照料现场细节,为实现宾客的顺畅互动及私密保障竭尽方便。
阿斯特宴会厅共有900平方米,长45米*宽20米*高7 米,无柱,可利用空间大,宽敞前厅(428平方米)可做签到区,茶歇区及鸡尾酒会理想场所亦有户外区域可供吸烟。
除此之外,还有3个会议室(46-66平方米)及一个 VIP室(105平方米)。
03 钻石俱乐部
全城最奢华的空中会所——钻石俱乐部1500㎡,城市最顶点,时尚而不失传统精髓,日间山海景观及夜间奇幻灯光,感受云端之上的极致之美。打造成为精英群体艺术私享和品鉴、商业发布庆典、高端企业年会、高端商业论坛等活动中心,成为全新的青岛城市目的地。
楼层:82
容纳人数:60-100人、包厢10人
目前,山东美程会展已经在中国主要经济区域建立了完善的服务网络,服务范围已覆盖全国30多个主要城市和地区,为客户提供服务一站式、采购一站式、区域一站式的资源整合营销服务。
千万服务,始终如一,
美程有幸,匠心为您。
